

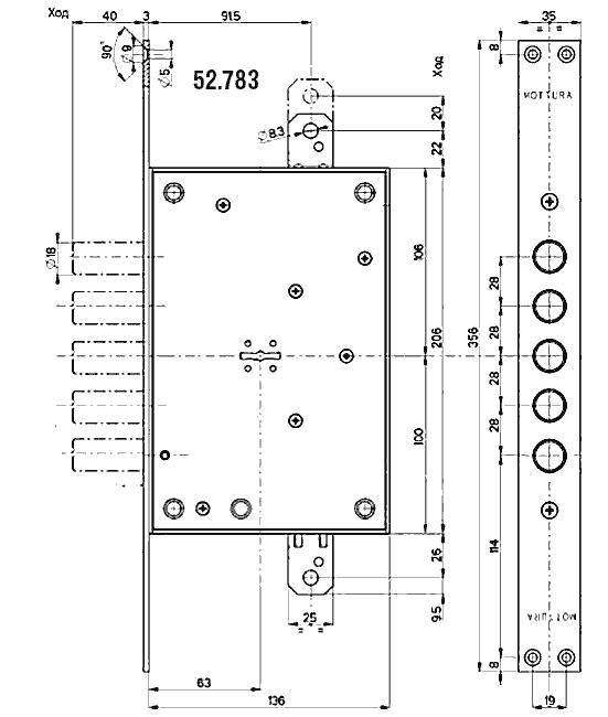
Замок Моттура 52.783
Модель 52-ї серії без защіпки та ручки. Основне призначення — експлуатація у важких сталевих дверях та конструкціях зі сталі. Замок підходить до правих та лівих дверей, виготовлених в Італії.
Особливості моделі
Модель є аналогом 52.782, єдина відмінність — можливість підключення системи багатостороннього замикання.
Модель оснащена секретним механізмом сугальдного типу з подвійною борідкою і крученими пружинами, розміщеному в модулі Easy Go. Секретність замка можна змінити встановленням нового модуля із сугальдами, що комплектується новим набором ключів. Частина сугальд оснащена обманними пазами, частина може бути без пружин та виставлятися ключем. Ключі замка несиметричні — борідки (боки) мають різні секрети на шести різних висотах. Всі описані рішення спрямовані на підвищення протистояння інтелектуальним методикам розкриття — насамперед роботі відмичками.
Замок 52.783 оснащений захистом від згортання (силового повороту) — для цього ослаблений хвостовик засува, який при перевищенні зусилля повороту обламується, унеможливлюючи подальшу роботу згортанням. Стійка хвостовика засува захищена від висвердлювання запресованою загартованою кулькою, а спеціальний важіль запобігає забиванню ригелів усередину корпусу.
У комплект, крім замка, входить запірна планка, внутрішня та зовнішня декоративні накладки, набір із п'яти ключів.




