
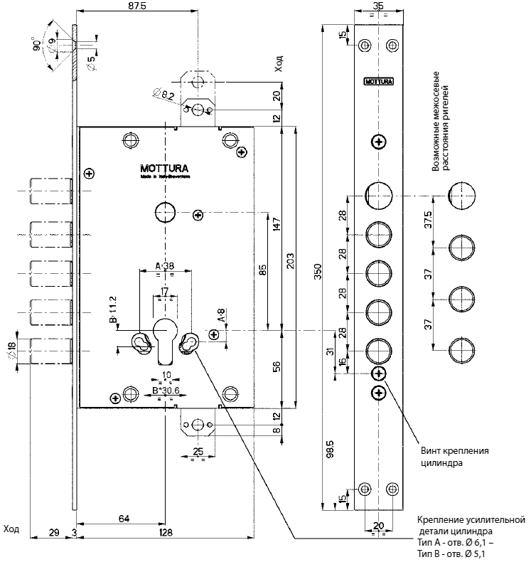
Замок Моттура 84.525Q
Циліндрова модель 84-ї серії без защіпки, з блокуванням ригелів при вилученні циліндра. Основне призначення — експлуатація у важких сталевих дверях. Виготовлений в Італії.
Особливості моделі
Модель призначена для роботи з циліндровими механізмами із європейським типорозміром корпусу (євроциліндри). Зусилля від циліндра до ригелів передається за допомогою редуктора з шестерень, який забезпечує плавну роботу механізму замка та зменшення навантаження на циліндр, знижуючи його зношування та збільшуючи термін роботи.

Модель оснащена захистом від забивання ригелів всередину корпусу і блокуванням ходу ригелів при несанкціонованому вилученні циліндра (вибиванні, зламі з вириванням тощо). Блокування працює у закритому положенні замка при повністю висунутих ригелях.




